Přístavba
domu z 30. let
Náš návrh citlivě rozvíjí původní dům z 30. let tak, aby plně odpovídal současným potřebám rodiny a zároveň respektoval charakter původní stavby. Návrh přizpůsobuje historický dům modernímu způsobu života a vytváří nadčasové prostředí pro každodenní fungování.
Nová obytná přístavba
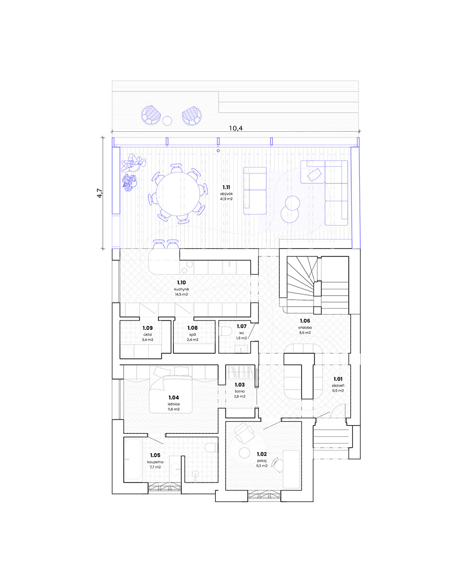
Hlavním prvkem projektu je přístavba, která rozšiřuje dům o prostornou obytnou část orientovanou do zahrady. Otevřený interiér s dostatkem denního světla propojuje kuchyň, jídelnu a obývací prostor v jeden celek, jenž se stává srdcem domova. Velká okna a přímý vstup na terasu zajišťují přirozené spojení vnitřního a venkovního prostředí.
Rekonstrukce původní části domu
Stávající objekt je navržen k celkové rekonstrukci tak, aby odpovídal současným technickým i prostorovým standardům. Úpravy dispozic umožňují vytvořit funkční zázemí pro rodinu, zlepšují logiku provozu v domě a přinášejí kvalitní moderní bydlení při zachování hodnot historické stavby.
Vestavba do podkroví
Do podkroví je navržena vestavba, která významně zvyšuje jeho užitnou plochu. Nově vzniklé pokoje poskytují další soukromý prostor pro členy rodiny, přičemž konstrukční řešení dbá na světlost, komfort a přirozené větrání. Podkroví tak získává zcela nový životní potenciál.
Altán s venkovní kuchyní
Zahrada je doplněna o altán s venkovní kuchyní, který rozšiřuje možnosti trávení času venku. Slouží jako místo pro rodinné setkávání, vaření i odpočinek a vytváří příjemnou zónu propojenou s domem i okolní zelení.
​​​​​​​Fáze: studie
Rok: 2025



další projekty

Nahoru