Půldomek
Dům vzniká jako soudobá odpověď na potřeby mladé rodiny. Je navržen na půdorysu stávajícího domu, čímž přirozeně navazuje na původní stopu zástavby a respektuje dané limity místa. Řešení je zásadně ovlivněno úzkou a dlouhou parcelou, která se stává určujícím rámcem celého návrhu.
Základním motivem domu je průhled vedený od vstupu až do zahrady. Tato jasná prostorová osa spojuje vstupní podlaží v jeden celek, zjednodušuje orientaci a přirozeně propojuje dům s exteriérem. Přes omezené rozměry parcely působí interiér otevřeně a vzdušně.
Přízemí dominuje otevřený obytný prostor. Kuchyně a obývací pokoj jsou orientovány směrem do zahrady a díky velkorysému prosklení se zahrada stává nedílnou součástí bydlení. Dispozice je jednoduchá, racionální a přehledná, bez nadbytečných chodeb. Speciálním přáním klientů bylo okno s lavicí, odkud mohou nerušeně užívat výhledu do soukromé zahrady.
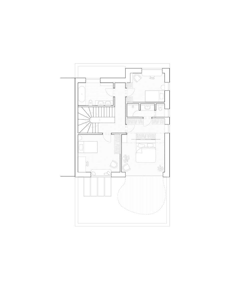
Ve druhém nadzemním podlaží se dům zklidňuje. Ložnice rodičů je orientována do zahrady, s cíleným výhledem z postele přímo do zeleně. Minimalistické řešení prostoru podporuje pocit klidu, soukromí a odstupu od ruchu každodenního života.
Architektura domu pracuje s čistými liniemi, proporcí a světlem. Našim cílem je vytvořit nadčasové bydlení, které respektuje kontext i omezení parcely.
​​​​​​​Fáze: studie
Rok: 2025



další projekty

Nahoru